قرية دي باي الساحل الشمالي
قرية دي باي الساحل الشمالي هي إحدى المشاريع الجديدة التي قامت شركة
تطوير مصر بأنشأها، والتي تعد من الشركات الضخمة التي تسعي دائمًا لإنشاء
المشاريع العقارية بطرق جديدة مليئة بالابتكارات، كما تم بناء الوحدات علي علي
نظام المصاطب حتى يستمع كل مالك بالإطالة الموجودة في وحدته، حيث تتمتع
القريه بكافه الخدمات المختلفه لتلبيه احتياجات العملاء.
للاستفسار
01050830354-01050830356
WhatsApp : 01050830354

دي باي الساحل الشمالي
الشركة المالكة لقرية دي باي الساحل الشمالي
تعتبر شركة تطوير مصر للإستثمارى العقارى من أكبر الشركات الرائدة في السوق
العقارى المصرى حيث تملك مكانة مرموقة وسط الشركات العقارية المصرية منذ
نشأتها سنة 2016 قدمت من خلالها سلسلة متميزة من المشروعات السكنية
والسياحية العملاقة في مختلف المناطق العين السخنة والساحل الشمالى ومدينة
المستقبل بالقاهرة الجديدة وتحرص دائما على تقديم كل ماهو جديد ومتطور
لعملائها واحدثها دى باى وتضم شركة تطوير مصر مجموعة من المطورين العقاريين
وهم المهندس / أشرف عرفة صاحب عرفة جروب ،د/ سمير عارف صاحب مفاتيح
وكوالين الأهرام، حمادة داوود – سامر زيتون أصحاب شركة ماديكو لمواتير المياه ،
د/ أحمد شلبى – مستشار وزير الإسكان السابق، ومن اهم المشروعات التى
طورتها شركة تطوير مصر :المونت الجلالة العين السخنة،منتجع فوكا باى الساحل
الشمالى، بلوم فيلدز القاهرة الجديدة، فيا العين السخنة.

موقع دى باى الساحل الشمالى
منتجع دى باى الساحل الشمالى يتميز بموقعه الاستيراتيجى المميز في الكيلو
165 طريق الاسكندرية الصحراوي / مرسى مطروح فى منطقة الضبعة وبالتحديد
أمام مخرج محور الضبعة مما يحقق للمشروع ميزة تنافسية بكونه قريب من المحاور
والطرق الجديدة بمنطقة الساحل الشمالى حيث تتميز بإطلالة رائعة على شاطيء
البحر الأحمر مباشرة حيث تبعد عن مدينة مرسى مطروح بحوالي 75 كم فقط وتبعد
ايضا فقط 15 دقيقة عن قرية تلال الساحل و5 دقائق من قرية لافيستا الساحل
وهى تعتبر من أرقى قرى الساحل الشمالي وبالقرب من خليج الضبعة وتبعد ايضا
دقائق عن مطار مدينة العلمين الجديدة.

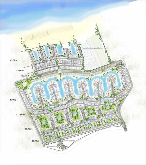
مساحات دي باي الساحل الشمالي
تتنوع الوحدات في القرية علي العديد من المساحات وتم بناء القرية على مساحة
ضخمة تقدر بحوالي 200 فدان وعلى عرض بحر يصل الي 800 متر وتنقسم القرية
الى ٩٠٠ وحدة، وتتنوع الوحدات في قرية دى باى الساحل الشمالي
الى:شاليهات، توين هاوس، فيلات مستقلة، لوفتس ،كبائن فندقية

دي باي الساحل الشمالي
خدمات دى باى الساحل الشمالي
دى باى الساحل الشمالي تجربة فريدة مميزة سوف يكون لديك كل ما تحتاجه
مباشرة حيث يمكنك تناول الطعام أو التسوق أو الاسترخاء أو العمل في مكان واحد
كذلك يوجد مطاعم وكافيهات عالمية.
كما ان تم توفير أمن وحراسة على مدار 24 ساعة.
كذلك يوجد مساحات خضراء، بحيرات صناعية.
كما ان يوجد حمامات سباحة.
كذلك تم توفير كلوب هاوس.
كما ان متاح تراك للجرى.
كذلك يوجد كاميرات مراقبة.
كما ان يوجد العديد من لاندسكيب.
كذلك يوجد فى القرية جيم وسبا وجاكوزى.
كذلك يوجد كريستال لاجون.

انظمة السداد
قامت دي باي علي توفير نظام سداد للعملاء يتكون من دفع مقدم 10% و
تقسيط الباقى على مدار 8 سنوات بدون فوائد، وعلي اقساط متساوية.
للاستفسار
01050830354-01050830356
WhatsApp : 01050830354
Registration Form
[contact-form-7 id=”57″ title=”Contact form 1″]